4 Zimmer-Apartment / Kitzbüheler Alpen / Tirol / Serviced Apartment
Views: 5149 / Kontakte: 0 / 5093
-
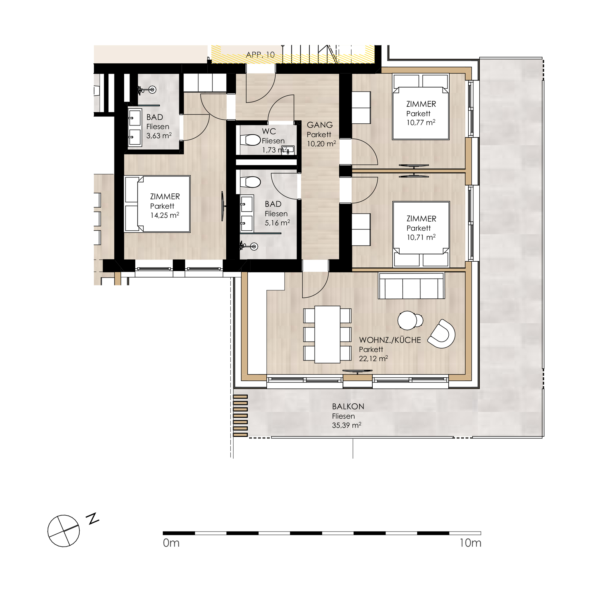
Zum Verkauf steht ein luxuriöses 4-Zimmer-Apartment mit drei Schlafzimmern, Wohn-
Essbereich, zwei Badezimmern und separater Toilette.Dieses Apartment ist Teil eines exklusiven Projekts, das insgesamt 50 luxuriöse Einheiten umfasst – von Studios bis hin zu 4-Zimmer-Wohnungen. Die Wohn- und Nutzflächen reichen von 33 m² bis 99,9 m², und die Balkon- und Terrassenflächen von 4,3 m² bis 93,3 m². Die Kaufpreise liegen zwischen 317.000 € und 1.469.000 €.
Dieses Projekt vereint Tradition und Moderne und ist speziell für die touristische Vermietung konzipiert. Es bietet eine nachhaltige Anlage für Generationen und eine sichere Investition, die im Grundbuch verankert ist. Die erwartete Rendite beträgt bis zu 5,03 % ab dem 3. Betriebsjahr.
Der Preis versteht sich exklusive Stellplatz und Inventar. Die Immobilie ist ausschließlich als Anlageobjekt vorgesehen und kann weder als Haupt- noch als Freizeitwohnsitz genutzt werden.
Zusammenfassung:
– Appartementverwaltung durch Vermietungsmanagement
– Eröffnung Dezember 2024
– Sicheres, im Grundbuch verankertes Immobilieneigentum
– provisionsfreier Erwerb für Käufer
– Gute Rendite inkl. Wertsteigerungsmöglichkeiten
– Keinerlei laufende Kosten für den Investor
– Sorgenfreies Eigentum & professionelles Management
– Abwicklung nach Bauträgervertragsgesetz – 100 % Transparenz und Sicherheit
– Auf Wunsch steuerliche und rechtliche Begleitung weit über Vertragsabschluss hinaus
– Widmung: Touristische Nutzung
Wir freuen uns auf Ihre Anfrage! -
Flächen
- Wohnfläche: 78,6 m²
- Gesamtfläche: 78,6 m²
- Zimmer insgesamt: 4
- Schlafzimmer: 3
- Badezimmer: 2
- Separate WCs: 1
- Balkon-/Terrassenfläche: 34,7 m²
Zustand & Erschließung
- Baujahr: 2024
Sonstiges
- Immobilie ist verfügbar ab: Ende 2024
-
– freundliche Raumaufteilung
– große Fenster und Balkontüren
– Wellnessbereich mit Schwimmbad
– Lobby mit Rezeption
– 2 Restaurants mit Terrasse und Bar
– Abstellräume, Sportshop
– 35 Tiefgaragen- & 19 Freiparkplätze
– Fernwärme & Photovoltaikanlage- Art der Ausstattung: gehoben
- Heizungsart: Fußbodenheizung
- Befeuerung: Solar, Fernwärme
- Bodenbelag: Fliesen, Parkett
- angeschl. Gastronomie: Hotel-Restaurant, Bar
-
- Primärenergieträger: Solar, Fernwärme
-
Diese Wohnungen entstehen ganz in der Nähe zu den Skipisten und fußläufig ins Zentrum.
Sie können somit fußläufig Restaurants, Shops und Infrastruktureinrichtungen wie z.B. den Gaisberglift, Skibus, Badesee, etc. erreichen. Wander- und Biketouren können Sie direkt vor der Haustüre starten.
Kirchberg liegt mitten im weltberühmten Skigebiet Kitzbühel und bietet mehr als 233 Pistenkilometer. Gegen Süden hin erstreckt sich das Spertental bis zum idyllischen Örtchen Aschau mit seinem wunderschönem Naturschutzgebiet. Im Sommer ist der Kirchberger Badesee ein beliebtes Ziel und ebenfalls fußläufig erreichbar. Nach Kitzbühel sind es nur ca. 6 km.
Die Städte Innsbruck (95km), Salzburg (80km) und München (120km) sind jeweils in ca. einer Stunde erreichbar.
-
- Kaufpreis: 879.000 €










