Traumhaftes Design-Chalet in ruhiger Lage
Views: 5438 / Kontakte: 0 / 5093
-
Dieses Designer Chalet wurde im Jahre 2021 kernsaniert und bietet ein anspruchsvolles Raumkonzept und es wurde größter Wert auf die Verwendung von authentischen Materialien wie Altholz und Naturstein gelegt.
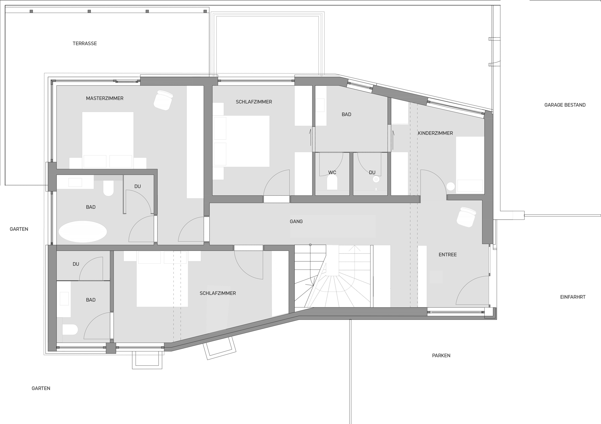
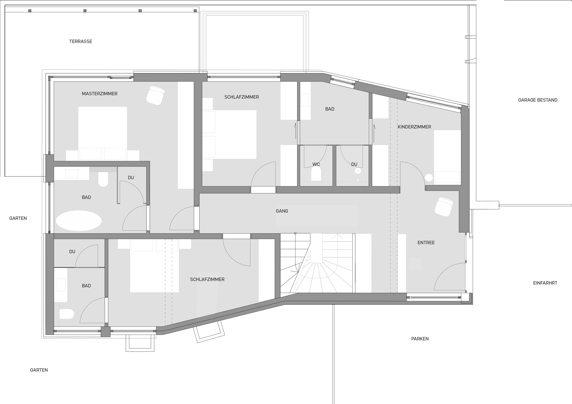
Die großzügig bemessene Diele mit Garderobe sorgt für den sehr stimmigen ersten Eindruck. Auf dieser Ebene befinden sich der Masterbereich mit Ankleide und einem lichtdurchflutendem Badezimmer, sowie zwei weitere Schlafzimmer mit gemeinsamen Badezimmer.
Von allen Zimmern gelangen Sie in den schön angelegten Garten und auf die teils überdachten Terrassenflächen.
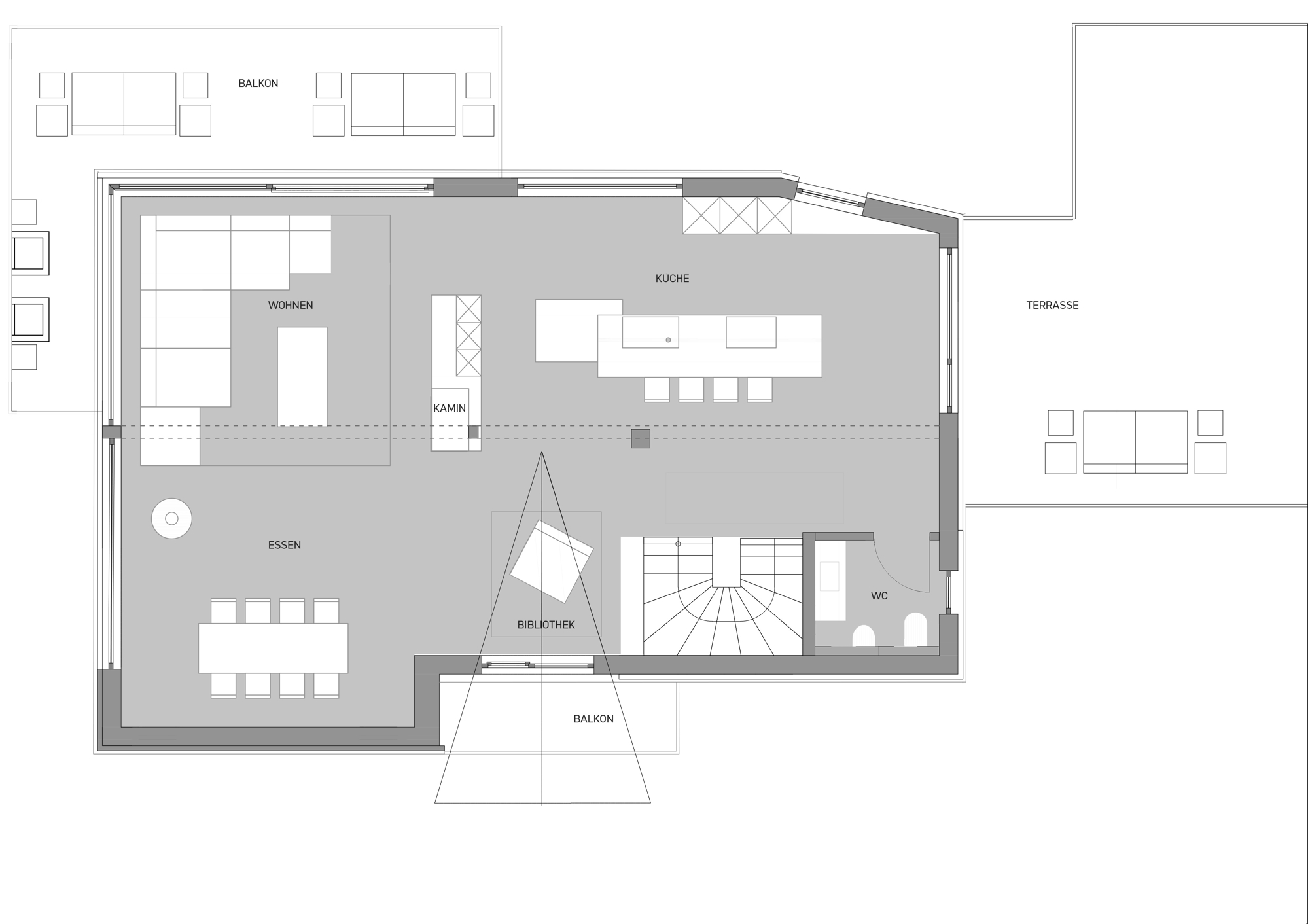
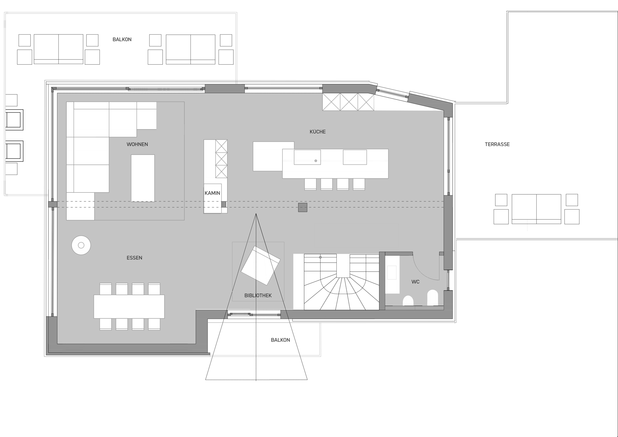
Eines der Highlights ist der großzügige Wohn-Ess-Küchenbereich mit Altholzsichtdachstuhl, bodentiefen Panoramaverglasungen und einem offenem Kamin mit Natursteinverkleidung.
Die Profiküche in Keramik „LAPITEC Bianco Crema vesuvio und dune“ gefertigt, verfügt über die neuesten Miele und Gaggenau Geräte. Vom Küchenbereich gelangen Sie auf die Dachterrasse, welche teils überdacht und mit einem Grill, einer Feuerschale und einem Aussen-Loungebereich ausgestattet ist.
Als besonderes Highlight im Untergeschoss gilt sicherlich der Wellnessbereich mit Sauna, Dampfbad, Wellnessdusche, Toilette und Relaxzone. Weiters bietet diese Ebene ein Gästeschlafzimmer mit Badezimmer ensuite, sowie genügend Technik-, Wirtschafts- und Lagerräume.
Dieses traumhafte Designer-Chalet wird inklusive der gesamten hochwertigen Möblierung übergeben.
Zur Immobilie gehört eine Doppelgarage, welche zusätzlich auch Staufläche für Skier und Mountainbikes bietet. -
Flächen
- Wohnfläche: 284 m²
- Grundstücksfläche: 527 m²
- Nutzfläche: 72 m²
- Gesamtfläche: 356 m²
- Zimmer insgesamt: 7
- Schlafzimmer: 5
- Badezimmer: 4
- Separate WCs: 1
- Stellplätze: 4
- Außenstellplätze: 2
- Garagenstellplätze: 2
- Balkone: 3
Zustand & Erschließung
- Zustand: neuwertig
- Keller: voll unterkellert
-
Zur Ausstattung dieses Designer Chalets gehören u.a.:
– Altholzeinbauten
– Fassade in Naturstein & Altholz
– Kamin in Naturstein
– Spachteltechniken in den Bädern
– Erdwärmeheizung
– Solaranlage
– Gessi Armaturen in Schwarz matt
– Profiküche mit Gaggenau- und Mielegeräten
– Designer Lampen (Tom Dixon, etc…)
– Sauna und Dampfbad
– komplette Designer-Möblierung
– Eichenvertäfelungen
– uvm.- Heizungsart: Fußbodenheizung
- Befeuerung: Solar, Erdwärme
- Bodenbelag: Stein, Dielen
-
- HWB-Wert: 81,00 kWh/(m²*a)
- fGEE-Wert: 0,88
- Primärenergieträger: Solar, Erdwärme
- Energieausweis-Gebäudeart: Wohngebäude
-
Dieses Designer Chalet liegt in ruhiger Lage von Kirchberg am Fuße des Gaisbergs. Das Zentrum von Kirchberg ist in wenigen Gehminuten zu erreichen und im Winter ist die Skiabfahrt, als auch die Skibushaltestelle ca. 450 m vom Haus entfernt.
Kirchberg in Tirol liegt mitten im weltberühmten Skigebiet „Kitzbühel – Kirchberg“ und bietet mehr als 233 Pistenkilometer. Gegen Süden hin erstreckt sich das Spertental bis zum idyllischen Örtchen Aschau mit seinem wunderschönem Naturschutzgebiet. Im Sommer ist der Kirchberger Badesee ein beliebtes Ziel. Nach Kitzbühel sind es nur ca. 6 km.
-
- Kaufpreis: 3.490.000 €
- Käuferprovision: 3% zzgl. 20% MwSt.

















